1695 Rue du Capricorne
Bécancour, Centre-du-Québec G9H3Z9
Maison à paliers multiples | MLS: 22135355
344 900 $
Description
Découvrez cette magnifique maison unifamiliale de quatre chambres, entretenue avec le plus grand soin, parfaite pour une famille à la recherche de confort et de quiétude. Vous serez charmé par sa splendide cour aménagée, agrémentée d'une piscine, idéale pour profiter pleinement des beaux jours en famille ou entre amis. Située dans un secteur résidentiel paisible, la propriété se trouve à seulement quelques minutes du parc industriel de Bécancour, en plein essor, offrant d'excellentes perspectives professionnelles. Une visite vous convaincra sans hésiter !
Inclus : Luminaires, habillage des fenêtres, deux supports muraux pour TV, thermopompe et accessoires, balayeuse centrale et accessoires.
Exclus : Biens et effets personnels du vendeur. (Tout est discutable)
Location
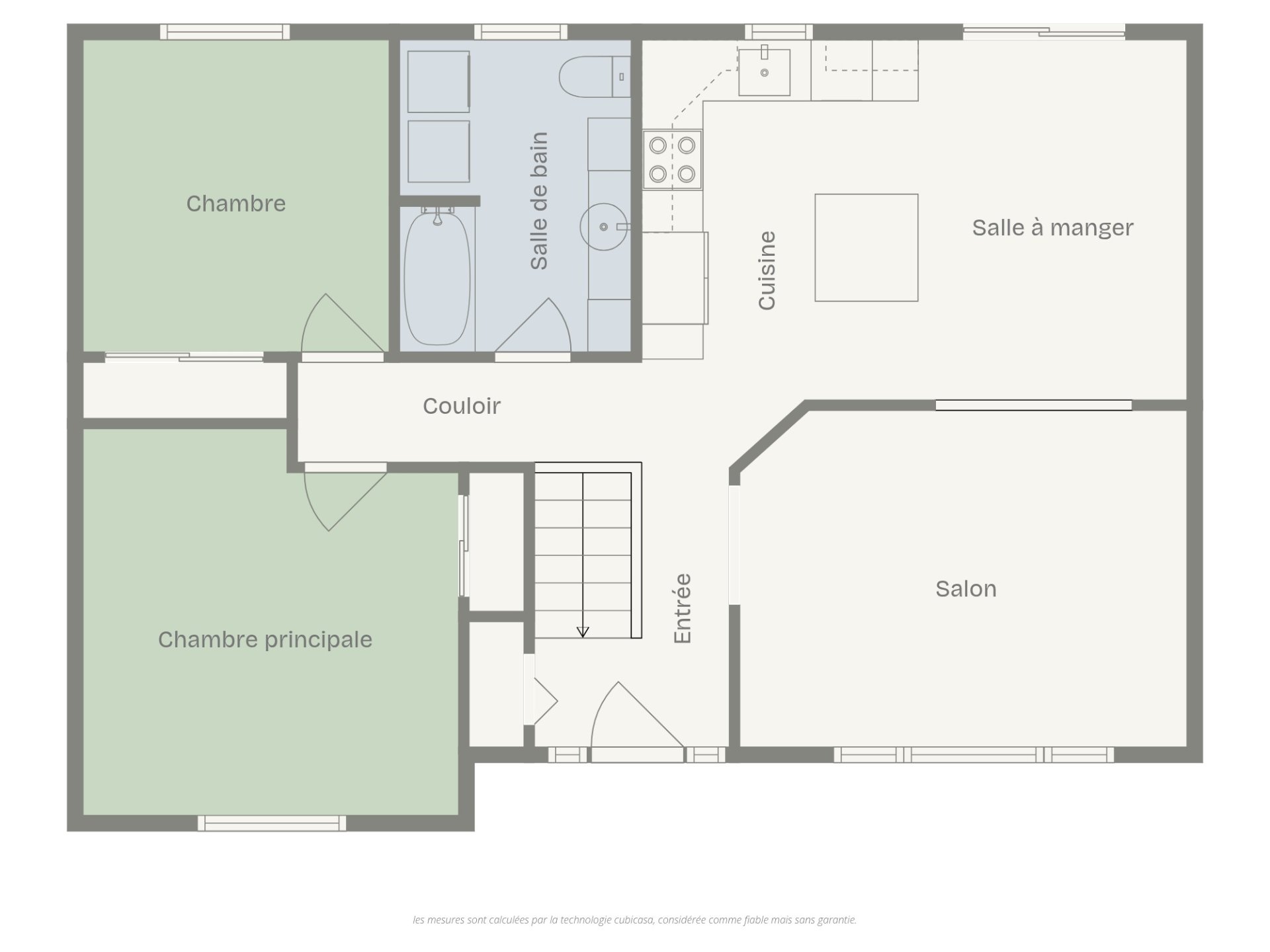
Détails des pièces
| Chambre | Dimensions | Niveau | Revêtement |
|---|---|---|---|
| Salon | 14.7 x 10.10 P | Rez-de-chaussée | Bois |
| Salon | 14.7 x 10.10 P | Rez-de-chaussée | Bois |
| Cuisine | 9.3 x 11.6 P | Rez-de-chaussée | Céramique |
| Cuisine | 9.3 x 11.6 P | Rez-de-chaussée | Céramique |
| Coin repas | 8.7 x 11.6 P | Rez-de-chaussée | Bois |
| Coin repas | 8.7 x 11.6 P | Rez-de-chaussée | Bois |
| Salle de bains | 10.2 x 7.6 P | Rez-de-chaussée | Céramique |
| Salle de bains | 10.2 x 7.6 P | Rez-de-chaussée | Céramique |
| Chambre à coucher principale | 12.4 x 12.2 P | Rez-de-chaussée | Bois |
| Chambre à coucher principale | 12.4 x 12.2 P | Rez-de-chaussée | Bois |
| Chambre à coucher | 10.3 x 9.9 P | Rez-de-chaussée | Bois |
| Chambre à coucher | 10.3 x 9.9 P | Rez-de-chaussée | Bois |
| Salle familiale | 14.6 x 10.8 P | Sous-sol | Couvre-sol souple |
| Salle familiale | 14.6 x 10.8 P | Sous-sol | Couvre-sol souple |
| Chambre à coucher | 14.0 x 12.7 P | Sous-sol | Plancher flottant |
| Chambre à coucher | 14.0 x 12.7 P | Sous-sol | Plancher flottant |
| Chambre à coucher | 10.9 x 10.4 P | Sous-sol | Plancher flottant |
| Chambre à coucher | 10.9 x 10.4 P | Sous-sol | Plancher flottant |
| Rangement | 15.8 x 10.9 P | Sous-sol | Béton |
| Rangement | 15.8 x 10.9 P | Sous-sol | Béton |
Caractéristiques
| Sous-sol | 6 pieds et plus, Totalement aménagé |
|---|---|
| Allée | Asphalte |
| Toiture | Bardeaux d'asphalte |
| Fondation | Béton coulé |
| Armoires | Bois |
| Revêtements | Brique |
| Proximité | École primaire, Golf |
| Énergie pour le chauffage | Électricité |
| Stationnement | Extérieur |
| Piscine | Hors-terre |
| Système d'égouts | Municipal |
| Approvisionnement en eau | Municipalité |
| Topographie | Plat |
| Mode de chauffage | Plinthes électriques |
| Foyers-poêles | Poêle à bois |
| Fenêtres | PVC |
| Zonage | Résidentiel |